









Vetro S47
Saunan lasiseinä vedin- ja saranapuolen sivulaseilla
Tuote soveltuu saunatilan jakamiseen. Ovessa ei ole lainkaan karmeja vaan saranat kiinnitetään suoraan saranapuolen sivulasiin. Sivulasit tuovat lisää valoa ja avaruuden tuntua tilaan.
Ovi kääntyy 90 astetta molempiin suuntiin, sen saranat on varustettu säädettävällä keskitykseltä, joka pyrkii palauttamaan oven auki sekä kiinni asentoihin.
Ylä- tai sivulasit varustetaan ruostumattomasta teräksestä valmistetuilla profiileilla. Profiilien väri vastaa heloitusten pintakäsittelyä ja profiilit ovat mittaan sahattuja (profiileja ei tarvitse katkaista asennusvaiheessa). Profiilien liitokset ja päädyt viimeistellään liitos- ja päätykappaleilla jotka myös helpottavat mitoituksen säätöä asennusvaiheessa.
Lasiovi kiinnitetään asentamalla oven saranat saranapuolen lasiin, sekä kiristämällä sarana kunnolla molempiin laseihin. Yläikkuna asennetaan ruuvaamalla ruostumaton teräsprofiili aukon yläreunaan. Teräsprofiilit toimitetaan tarkkuusleikattuna oikeaan mittaan, kulma- sekä linkkipalojen kera, joilla asennusjälki viimeistellään. Ylälasi liimataan profiiliin. Ylälasi kiinnitetään sivuista asennusheloilla. Kaikki sivulasit asennetaan ulkoreunat kehystävillä ruostumattomilla teräsprofiileilla, joihin lasit liimataan. Kun sivupaneelit yltävät lattiaan, asennetaan ne lattiaan liimattavin lattiaheloin alaosastaan.
Huomiothan että saranat tarvitsee jälkikiristää noin viikon käytön jälkeen. Jälkikiristyksellä varmistetaan, että lasit ovat tukevasti kiinni lasilevyssä. Saranat hakevat aina hieman paikkaansa ensimmäisten lämpötilavaihteluiden sekä käyttökertojen aikana. Jälkikiristys jää aina loppukäyttäjän tarkistettavaksi.
Tuotteelle on saatavissa asennuspalvelu Suomen suurimmissa kaupungeissa. Palvelun hinta on alkaen 600.00€ (sis alv.). Asennuksen voi tilata asiakaspalvelustamme.
20 Arkipäivää
20 vuoden takuu
Tuotteen kaikki metalliset helat valmistetaan messinkiseoksesta. Pintakäsittelyvaihtoehtoina ovat Kromi, Messinki ja Mustaksi maalattu. Vedin on valinnan mukaan joko kromattua, messingin väristä tai mustaa messinkiseosta tai puuvalmista leppää. Lasien asennusprofiilit valmistetaan ruostumattomasta teräksestä ja niihin toimitetaan saman väriset linkki-/kulmakappaleet. Asennusprofiilien väri on valitun pintakäsittelyvaihtoehdon mukainen.
Tuote valmistetaan 8mm -vahvuisesta karkaistusta turvalasista (EN 12150). Kirkas ja savu ovat sileäpintaisia ja läpinäkyviä laseja.
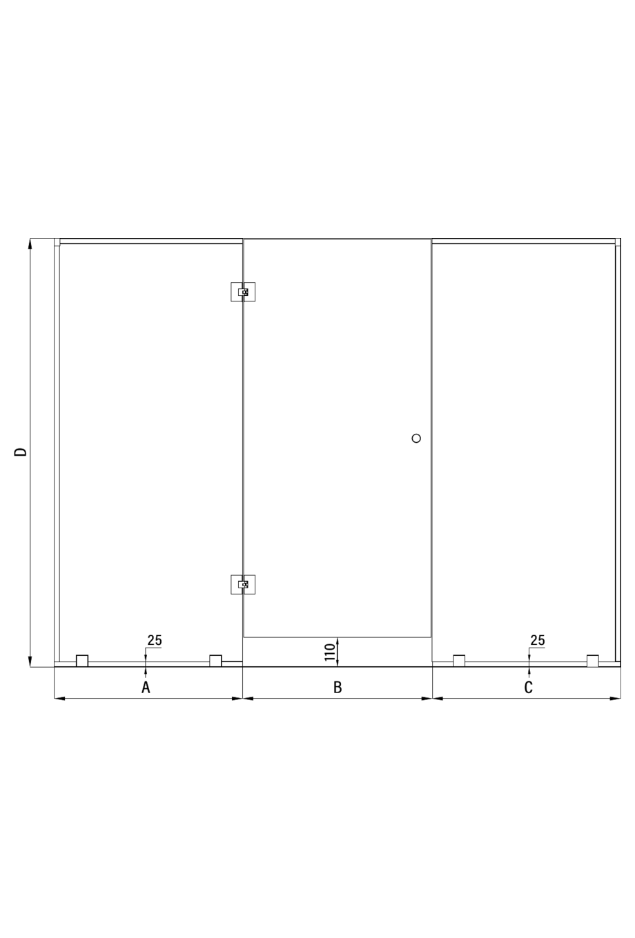
Oven koko voidaan valita vakiomitoista (700/800/900 x 2000) tai se voidaan valmistaa erikoismitoin, sivulasit valmistetaan aina erikoismitoin. Oven koon valinnassa leveys on asennusaukon leveys ja korkeus on lasilevyn korkeus. Oven asennusaukon korkeuden mitoituksessa lasin yläreunaan jätetään automaattisesti 5mm ja alareunaan 110mm käyntivaraa. Sivulasin valinnassa leveys ja korkeus ovat asennusaukon leveys ja korkeus. Asennus- ja säätövarat sisällytetään sivulasien lasilevyjen mitoitukseen automaattisesti. Ovi tarvitsee lisäsaranan pinta-alan ylittäessä 1.7m2, jotta ovipaneeli saa riittävän määrän tukea kiinnittämistä varten.
Tuotekoko
Valittu tuote voidaan asentaa aukkoon, jonka kokonaisleveys L1 on 2700mm ja kokonaiskorkeus L2 2000mm.:

Ovenpysäytintä, joka on valmistettu kromatusta messingistä, käytetään vaimentamaan ovien sulkemisen. Se asennetaan kiinteän lasin reunaan.Korkopala voidaan kiinnittää lattiahelan pohjaan, jolloin sitä saadaan nostettua 10mm.
Pyöreä metallivedin ja lyhyt metallivedin valmistetaan kromatusta messinkiseoksesta. Lyhyt puuvedin on puuvalmista leppää. Vedinvaihtoehdoista pyöreä metallivedin ja lyhyt puuvedin soveltuvat käytettäväksi myös saunanovessa. Mikäli oven pinta-ala ylittää 1.7m2, valitsettahan vedinvaihtoehdoista vedin + lisäsarana -vaihtoehdon.
Tuote
Tuotekoodi
Hinta
1
Vetro S47
Tuotekoodi
S47-21-000
Hinta
0.00 €
2
Glass door
Kromattu/Kirkas=800 x 1885
Tuotekoodi
039 21 0000
Hinta
503.00 €
3
Hinge side panel
Kromattu/Kirkas=900 x 2000
Tuotekoodi
046 21 0000
Hinta
472.00 €
4
Handle side panel
Kromattu/Kirkas=1000 x 2000
Tuotekoodi
045 21 0000
Hinta
451.00 €
5
Installation instructions
=
Tuotekoodi
8/25 6HRLM
Hinta
0.00 €
6
Pyöreä metallivedin
Tuotekoodi
891 21 0000
Hinta
0.00 €
7
YHTEENSÄ
Tuotekoodi
Hinta
1426.00 €
Valittu tuote voidaan asentaa aukkoon, jonka kokonaisleveys L1 on 2700mm ja kokonaiskorkeus L2 2000mm.:
| EAN: |
|---|



