




Bläk 680 Tokyo
Sauna glass wall with fixed panel on handle side and window above door
Bläk series sauna products have a modern design in an industrial style.
The door rotates 90 degrees in both directions and is equipped with an adjustable centering. The centering attempts to return the door back to the open and closed positions.
The hinges of the glass door are mounted directly to the building wall. The side panel and upper window is attached to the building wall and ceiling using wall mounting profile and side panel to the floor by using floor fitting profile. The panels are secured with self-drilling screws. Installation guide
18 Working days
20 year warranty
The profiles mounted to the edges of the panel are manufactured of aluminium. Profiles are painted black (RAL 9005) through powder coating.
The product is manufactured of 8mm thick tempered safety panel (EN 12150). Transparent and Grey are smooth surfaced and transparent panels
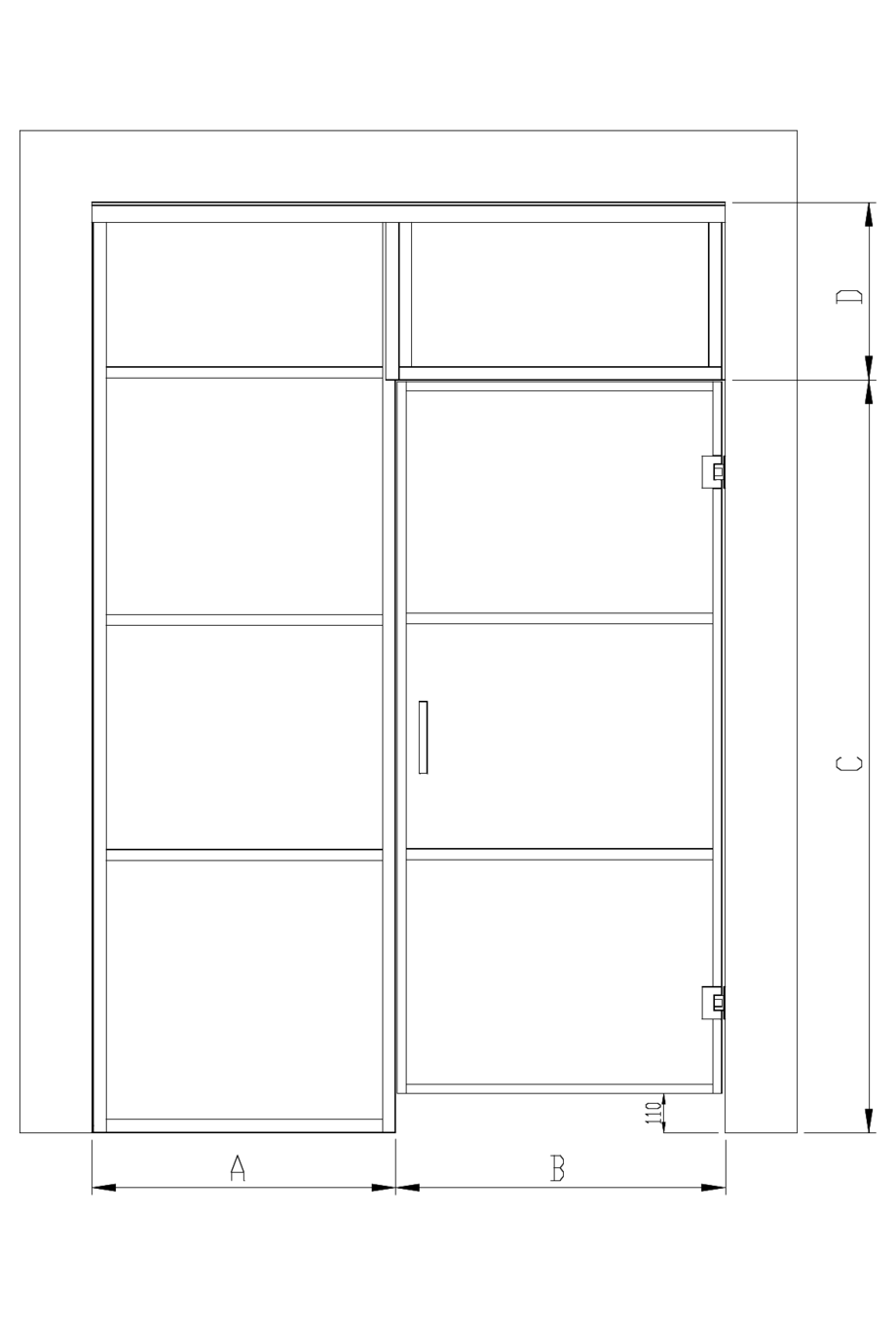
Sauna doors are always made to measure. When selecting the size of the door and the upper panel, the width is the width of the installation opening and the height is the height of the panel pane. When measuring the height of the installation opening of the door, a 5mm reserve is automatically left at the top edge of the panel and a 110mm reserve is left at the bottom edge. When selecting the side panels, the width and the height are the width and the height of the installation opening. Installation and adjustment ranges are included automatically in the dimensioning of the panel panes of the side panels. If the size of the door exceeds 1.7m2 an additional hinge is necessary to provide additional support.
Product size
The selected product can be installed into the opening the total width of which is 1300mm and the total length 2200mm.:

The round metal handle and the short metal handle are manufactured from chromed brass alloy. The short wooden handle is unfinished alder. Out of handle options, the round metal handle and the short wooden handle are also well-suited for use on a sauna door.
Product
Product code
Price
1
Bläk 680 Tokyo
Product code
680-91-000
Price
0.00 €
2
Glass door
Black/Transparent=700 x 1885
Product code
S70 91 0000
Price
577.00 €
3
Fixed Panel
Black/Transparent=600 x 2200
Product code
S73 91 0000
Price
566.00 €
4
Upper window
Black/Transparent=700 x 200
Product code
S72 91 0000
Price
315.00 €
5
Short metal handle
Product code
S77 91 0000
Price
0.00 €
6
Tokyo -frame
Product code
S75 9L 0000
Price
100.00 €
7
Tokyo -frame
Product code
S75 9L 0000
Price
100.00 €
8
TOTAL
Product code
Price
1658.00 €
The selected product can be installed into the opening the total width of which is 1300mm and the total length 2200mm.:
| EAN: |
|---|



