










Classic 655
Sauna glass wall with window on hinge side and above door
The product is suitable for sauna space division. The door does not have any frames, the hinges are mounted directly to the side window as well as the building wall below. The side panels add light and the feeling of spaciousness to the space.
The hinges have a turning range of 90 degrees in both directions and are equipped with adjustable centring that aims to return the door into its opened and closed positions.
Upper windows or side glasses profiles are manufactured of aluminum. Profiles are grey aluminum if frame colour is chosen as chrome and black aluminum if chosen as black. Profiles need to be cut to the precise length during mounting.
The door is mounted with hinges screwed directly to the building wall and to the hinge-side glass, and by fastening the hinges tightly to the glasses. The upper windows are mounted with aluminum profiles on the top, to which the glass is either glued, or the supplied locking seals are used, the aluminium profile is screwed to the top of the gap. The aluminum profiles should be cut to the precise length during mounting. The upper glass is secured with the help of glass clamps. All side panels are mounted with aluminum profiles framing the outer edges of the glasses, to which the glasses can be glued or supplied locking seals used, and with glass clamps on the bottom when mounted towards the floor. Please note that the hinges should be re-tightened after approximately one week of use, due to the heat affecting the placing of the hinge the few first times of use. The re-tightening is done by tightening the hex-screw on the glass-side as tight as possible. The responsibility of doing the tightening is always the end users.
20 Working days
5 year warranty
All metallic fittings are manufactured of brass alloy. Surface treatment options are Chrome plated and Black painted. The handle is by choice either chrome plated, black painted brass alloy or unfinished alder. Glass mounting profiles are made of aluminium. In chrome plated selection profiles are anodized whereas in black painted option profiles are painted black.
The product is manufactured of 8mm thick tempered safety panel (EN 12150). Transparent and Grey are smooth surfaced and transparent panels
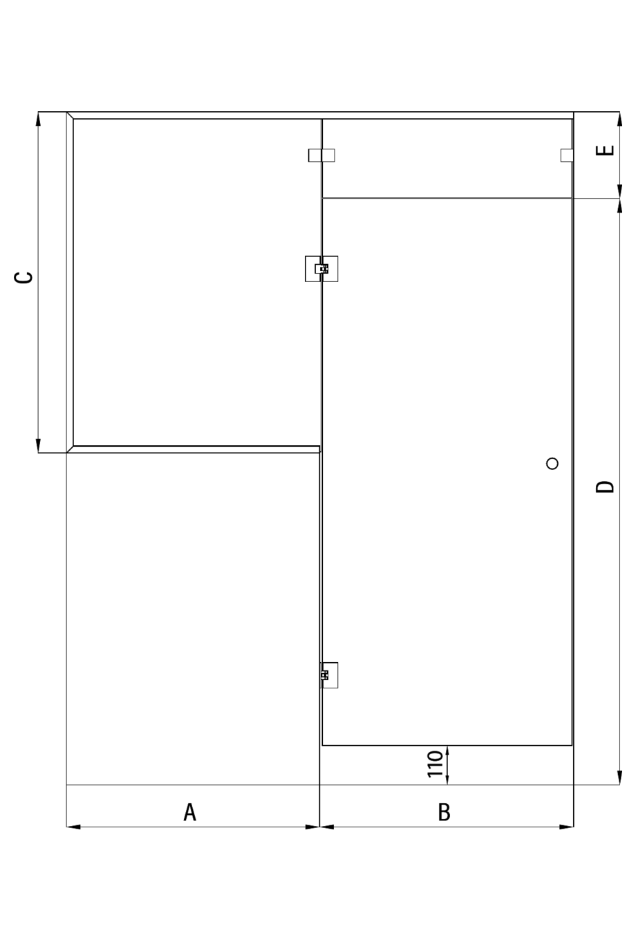
All glassses are always manufactured by special dimensions. When selecting the size of the door, the width and height are those of the installation opening. When dimensioning the height of the installation opening of the door, a 5mm reserve is automatically left at the top edge of the panel and a 110mm reserve is left at the bottom edge. Also when selecting the side panels and the upper glass, the width and the height are the width and the height of the installation opening. The installation and adjustment ranges are included automatically in the dimensioning of the panel panes.If the size of the door exceeds 1.7m2 an additional hinge is necessary to provide additional support.
Product size
The selected product can be installed into the opening the total width L1 of which is 1700mm and the total length L2 2250mm.:

The round metal handle and the short metal handle are manufactured from chromed brass alloy. The short wooden handle is unfinished alder. Out of handle options, the round metal handle and the short wooden handle are also well-suited for use on a sauna door. If the size of the door exceeds 1.7m2 , please select the handle option with additional hinge.
Product
Product code
Price
1
Classic 655
Product code
655-21-000
Price
0.00 €
2
Glass door
Chrome/Transparent=800 x 1885
Product code
640 21 0000
Price
440.99 €
3
Panel
Chrome/Transparent=900 x 700
Product code
674 21 0000
Price
158.00 €
4
Upper glass
Chrome/Transparent=800 x 250
Product code
642 21 0000
Price
105.00 €
5
Maintenance guide
=
Product code
059 RL MMMM
Price
0.00 €
6
Round metal knob
Product code
883 21 0000
Price
0.00 €
7
TOTAL
Product code
Price
703.99 €
The selected product can be installed into the opening the total width L1 of which is 1700mm and the total length L2 2250mm.:
| EAN: |
|---|



