





Inne M18 Paris
Glass doors with leverbolts and upper window
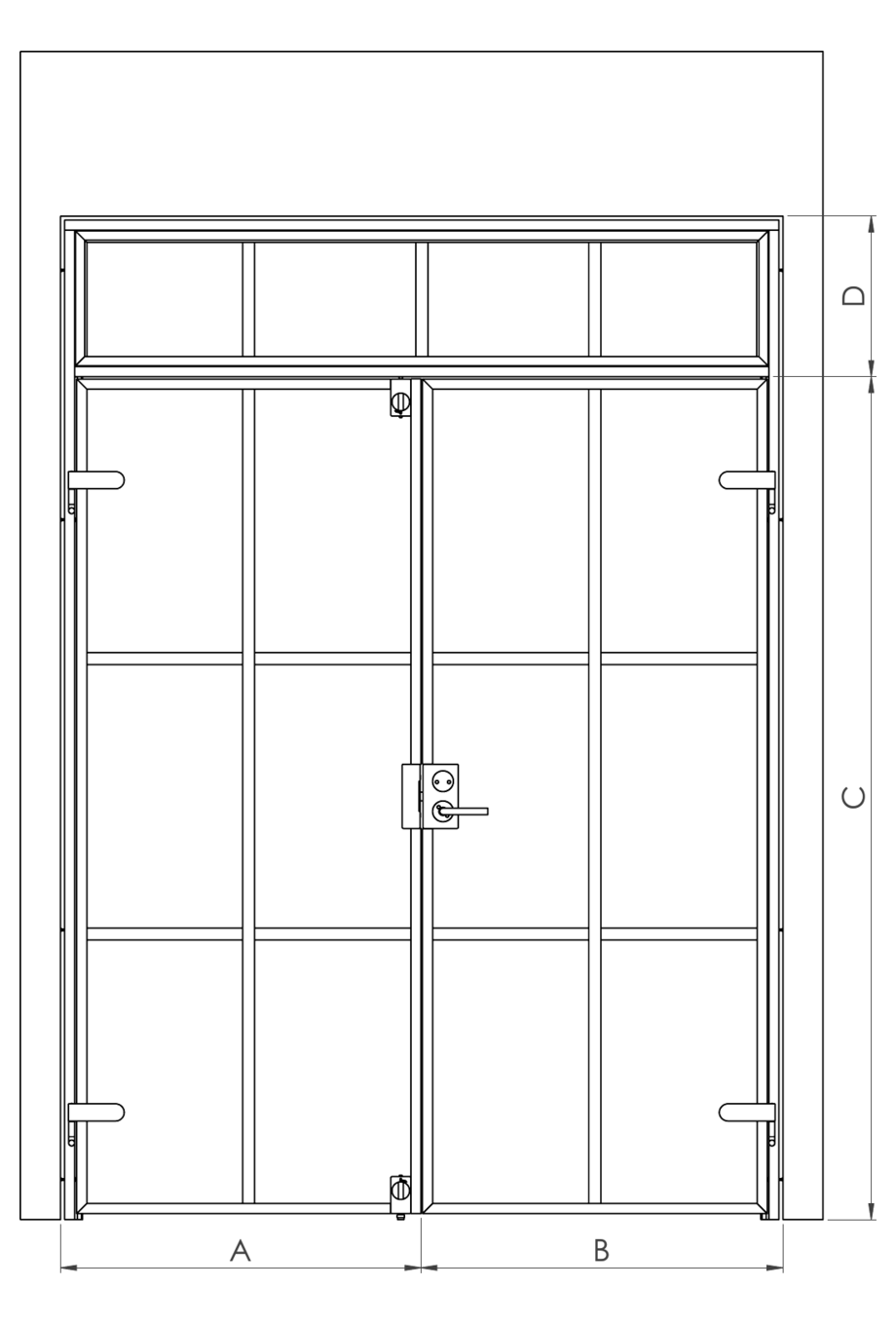
Inne Double doors with lever bolts and upper windows consists of an active door and a passive door. Both doors open 180 degrees in one direction. The passive door can be locked into place with lever bolts to act as a fixed panel, that can be turned out of the way when needed. The product has sturdy door jambs made of aluminium and door leaves and an upper window made of tempered glass. The product comes with frames, hinges, 2 door leaves, an upper window, a handle, a lock cassette, a lock counterpart and top and bottom lever bolts.
In the New York, Tokyo and Paris models, the door leaves are framed. The Tokyo and Paris models are also equipped with aluminum grids glued to the glass.
25 Working days
20 year warranty
Product jambs and depending on the model, possible door leaf frames and grids are manufactured of aluminium profiles. Hinges and other fittings are manufactured of brass alloy. Aluminium profile and fitting surfaces are powder painted in White (RAL 9016), Black (RAL 9005), Sand (RAL 1019), Mocha (RAL 8025) or Cocoa (RAL 8019). Please note, that seals and technical parts are always White (white and sand), or black (black, mocha and cocoa).
The product is manufactured of 8 mm thick tempered safety panel (EN 12150).
There's plenty of glass options available. Transparent, grey, brown and mirage. Satinglasses are available in different hues (satin, brown satin and grey satin).
One side of the satin glasses is etched to acquire a velvety feel and the other side is smooth. When choosing a satin glass product, bear in mind that the etched surface of the panel is sensitive to scratches and stains.
The mirage glasses transparency depends of lighting in the space, when backside is lit the glass seems transparent, when the backside is dimmed or dark, the mirroring effect kicks in.
The product is manufactured according to measures. When ordering, please state the width and height of the installation opening, where A is passive door and B the active door. C is height of doors and D is height of upperwindow. A 20 mm total mounting space is left between the product frames and the specified mounting opening on the sides, and 10 mm on top. The free access opening is 110 mm smaller than the width of the specified mounting opening, when both doors are opened. The depth of the frame is 92mm.
Product size
The selected product can be installed into the opening the total width of which is 1600mm and the total length 2001mm.:

The door can be equipped with a toilet thumbturn knob (optional). The surface color of the knob is black. The door can also be equipped with other thumbturns for the Nordic market.
The product is provided with a lock cassette, a handle and a cover plate for covering the thumbturn installation hole, as well as a counterpart for the lock. The thumbturn, which is commonly used in toilet doors is an additional equipment. The handle can be replaced with other handles commonly available in the Scandinavian market.
Product
Product code
Price
1
Inne M18 Paris
Product code
M18-61-000
Price
0.00 €
2
Passive door
White/Transparent/A=800 x 2000
Product code
C50 61 0000
Price
1250.00 €
3
Active door
White/Transparent/B=800 x 2000
Product code
C51 61 0000
Price
1250.00 €
4
Upper Window
White/Transparent=1600 x 1
Product code
C52 61 0000
Price
500.00 €
5
Inne jambs
White/Transparent=1600 x 2001
Product code
C53 61 0000
Price
0.00 €
6
Maintanance guide
=
Product code
059 RL MMMM
Price
0.00 €
7
Paris -frame
Product code
C04 6L 0000
Price
200.00 €
8
Paris -frame
Product code
C04 6L 0000
Price
200.00 €
9
Paris -frame
Product code
C04 6L 0000
Price
200.00 €
10
TOTAL
Product code
Price
3600.00 €
The selected product can be installed into the opening the total width of which is 1600mm and the total length 2001mm.:
| EAN: |
|---|



